Bürozeiten:
Mo.–Fr. 8:30–17:30 Uhr
oder nach Vereinbarung
Kaufgesuch
Mietgesuch

Impressum / AGB

Datenschutzerklärung

Anfahrtsbeschreibung

Unser Profil


Häuser

Hochwertig ausgestattet, sonnig ausgerichtet und in begehrter Lage -
diese 3-Zimmer-Maisonette vereint Komfort und Lebensqualität


Balkon


Lage & Grundstück:
Die idyllisch gelegene 3-Zimmer-Maisonette-Wohnung befindet sich in einem Zweifamilienhaus, das in Massivbauweise mit 36,5 cm Mauerwerk errichtet wurde. In unmittelbarer Umgebung ist eine Bushaltestelle vorhanden für die Fahrt in die Stadtmitte.
In Laufnähe gibt es mehrere Bäckereien, ein Café, einen Metzger, Ärzte sowie Restaurants und Einkaufszentren. Auch beginnen hier schöne Rad- und Wanderwege entlang der Memminger Ach. Das Landesgartenschau-Gelände liegt nicht weit entfernt zur Immobilie.

Baujahr: 1995
Abbildungen: Bilder zum Objekt

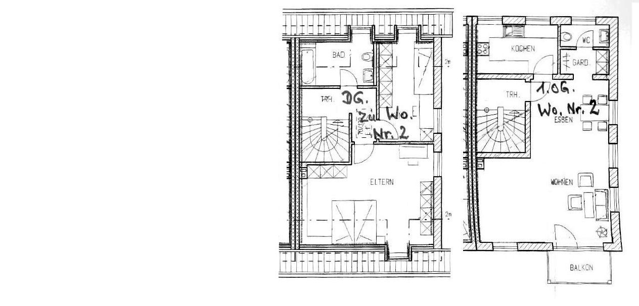
Grundriss zum Objekt

Preis: 365.000,-- Euro inkl. Einbauküche und Garage

Wohn-, Nutzfläche: - Wohnfläche ca. 98 m² (OG und DG)
- Südbalkon
- Tageslichtbad
- Gäste-WC
- Nutzfläche im unausgebauten Dachspitz über eine Einschubtreppe erreichbar
- 2013 Erneuerung der Heizung
- Moderne Einbauküche im Kaufpreis enthalten
- Einzelgarage ebenfalls im Kaufpreis enthalten
- großer Kellerraum mit ca. 16 m²
- gemeinschaftlicher Waschraum (Waschmaschine und Trockner können aufgesteltl werden
- Im EG befindet sich lediglich eine kleine Wohnung mit Garten
-- Verbrauchsausweis mit Endenergie 99,43kWh/(m²a), Gas, Zentralheizung

Bezugstermin: Die Immobilie kann ab sofort übernommen werden.
Vermittlungsgebühr: Bei dieser angebotenen Immobilie ist vom Käufer eine Provision in Höhe von 3 % zzgl. 19 % MwSt. zu zahlen. Diese Provision entspricht der Hälfte der Gesamtprovision im Sinne des neuen "Gesetztes über die Verteilung der Maklerkosten bei der Vermittlung von Kaufverträgen über Wohnungen und Wohngebäuden". Durch Ihre weitere Objektanfrage bestätigen Sie die Vereinbarung unter Anerkennung dieser Maklercourtage.

Exposé anfordern: Exposé zu Objekt 86626k
Bürozeiten:
Mo.–Fr. 8:30–17:30 Uhr
oder nach Vereinbarung
Kaufgesuch
Mietgesuch

Impressum / AGB

Datenschutzerklärung

Anfahrtsbeschreibung

Unser Profil