Bürozeiten:
Mo.–Fr. 8:30–17:30 Uhr
oder nach Vereinbarung
Kaufgesuch
Mietgesuch

Impressum / AGB

Datenschutzerklärung

Anfahrtsbeschreibung

Unser Profil


Gewerbeangebote in Memmingen Gewerbeangebote in der Umgebung
Gewerbliche Angebote
Gewerbeangebote Memmingen

......................................................................
............................................   

Helle Bürofläche in zentrumsnaher Lage

Objekt-Nr. 85625g

Attraktive und helle Büro- und Gewerbefläche in Memmingen-West

Ca. 100 m², sehr zentrumsnah, im 1. OG gelegen. Hochwertiger Parkettboden bzw. Fliesenbelag, hohe Räume (Deckenhöhe 2,70 m), neuwertige Fenster in allen Räumen.

Bushaltestelle vor der Türe.

Energieausweis in Vorbereitung.

Übernahme nach Absprache.

900,-- €
(zzgl. NK)
Innenaufnahmen der Büroräume (Verweis)
Bilder

Parkplaetze

Objekt-Nr. 85525g

Helle und flexible Büro- bzw. Beratungsfläche in Memmingen-Ost

Das Kaufobjekt mit ca. 142 m² Fläche liegt im Osten von Memmingen und ist für viele Branchen geeignet.
Parkplätze stehen zur Verfügung.

Übernahme nach Absprache möglich.
328.000,-- €

Grundriss der Büroräume in Memmingen (Verweis)


Parkplaetze

Objekt-Nr. 85425g

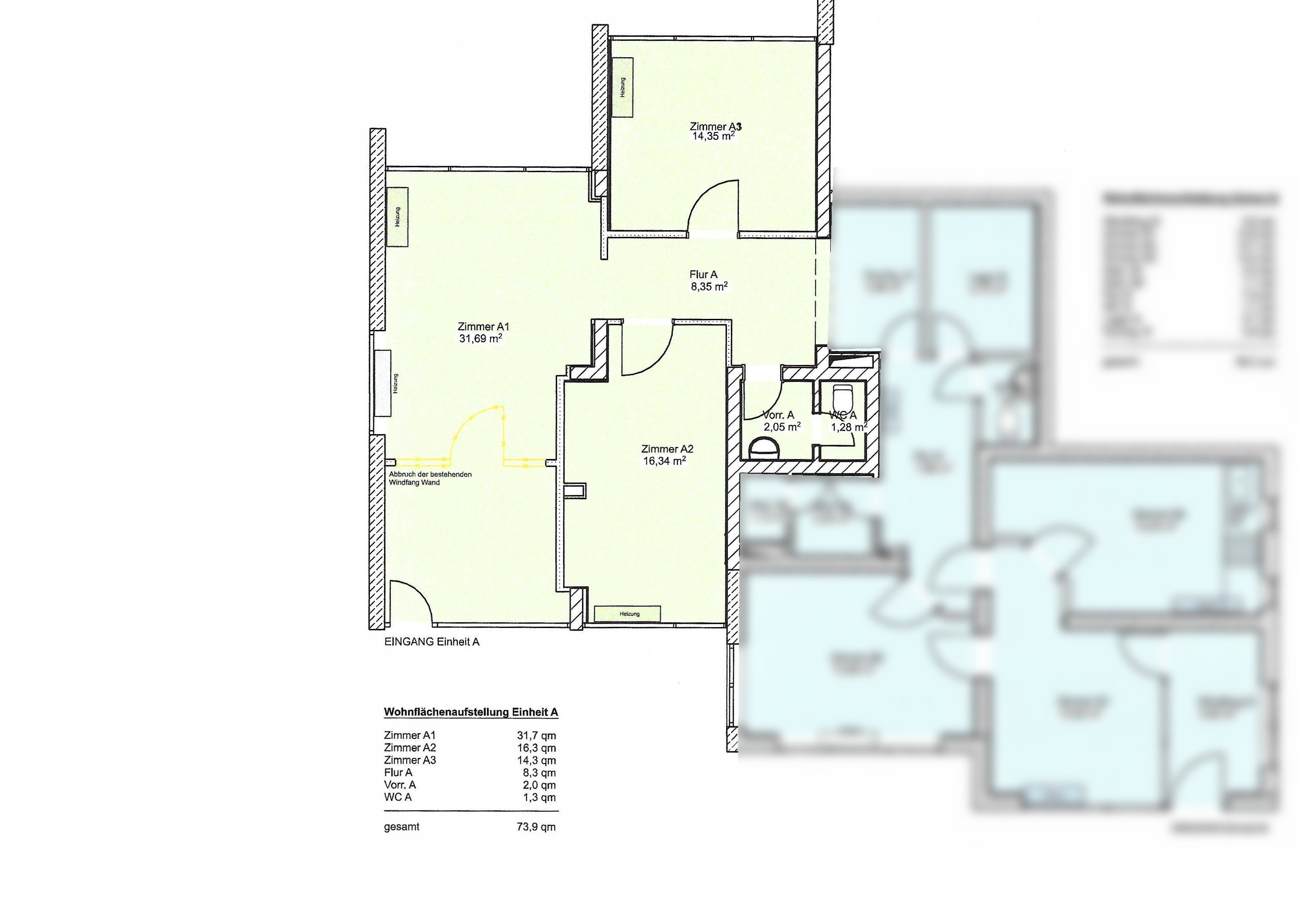
Helle und flexible Büro- bzw. Beratungsfläche in Memmingen-Ost

Das Mietobjekt mit ca. 142 m²  Fläche eignet sich für viele Branchen, z.B. Gesundheitswesen, Versicherungen, Ärzte usw.
Schwellenloser Zugang in die Räume, hohe Decken mit vorhandener Beleuchtung, gut belichtete Beratungs- und Besprechungsräume.
Parkpkätze am Gebäude sind vorhanden. Im direkten Umfeld findet man verschiedene Gewerbebetriebe, Supermarkt, Gaststätte und einiges mehr.
Energieausweis in Bearbeitung.
Vermittlungsgebühr beträgt 1,5 Kaltmieten zzgl. MwSt.
Übernahme nach Absprache möglich!
1.450,-- €
(zzgl. NK)
Grundriss der Büroräume in Memmingen (Verweis)
Grundriss

Grundriss der Büroräume in Memmingen (Verweis)
Bilder

Halle1

Objekt-Nr. 85325g

Lagerfläche- Halle 1 - Nähe Illertissen

Die Lagerhalle mit ca. 1.800 ² Fläche liegt im Gewerbegebiet. Kurze Verbindung zur Autobahnauffahrt. Nachtumschlag möglich. Verschließbarer Hofbereich. Gute Park- und Lagermöglichkeiten direkt auf dem Grundstück.

Energieausweis in Vorbereitung!
Übernahme nach Absprache!
ca.7.200,-- €
(zzgl. NK)


Grundriss der Büroräume in Memmingen (Verweis)
Bilder


Parkplaetze

Objekt-Nr. 81524g

Lager- und Produktionsfläche in Memmingen-Stadtteil

Die Gewerbefläche befindet sich ca. 5 Min. vom Autobahnzubringer entfernt. Helle Flächen mit bis 3,2 m hohen Räumen. Aufenthaltsraum mit Küchenzeile.  Sanitär mit zwei getrennten WCs. Stellplätze im Hofraum vorhanden.

Übernahme nach Absprache möglich.

950,-- €
(zzgl. NK)
Innenaufnahmen der Gewerbeflächen (Verweis)
Grundriss

Lage

Objekt-Nr. 84225g

Hochwertige Ladenfläche in zentraler Innenstadtlage

Das Gewerbeobjekt mit ca. 111 m² Fläche befindet sich nur etwa 100 m von der Fußgängerzone Memmingens entfernt. Die Immobilie umfasst eine ca. 98 m² ebenerdige Verkaufs- bzw. Beratungsfläche sowie ca. 13 m² als Aufenthalts- und Sanitärfläche und ist mit einem Marmorboden ausgestattet. Ein Tiefgaragen-Stellplatz kann für 50,-- €/monatlich hinzugemietet werden.

Energiebedarf mit Kennwert 95,6 kWh/(m²a), Gas.

Übernahme nach Absprache möglich!
900,-- €
(zzgl. NK)
Grundriss der Büroräume in Memmingen (Verweis)
Grundriss

Grundriss der Büroräume in Memmingen (Verweis)
Bilder

Lage

Objekt-Nr. 83825g

Flexible und helle Büro- bzw. Beratungsfläche im Zentrum von Memmingen

Die Immobilie mit einer Fläche von ca. 180 m² ist mit einer modernen Gebäude- und Wärmetechnik sowie mit Nadelvlies-Treppichboden ausgestattet. Insgesamt stehen hier fünf Büroräume, eine offene Empfangsfläche, ein Serverraum bzw, Archiv und zusätzliche Nebenräume (eine kleine Küche und 2 WCs) zur Verfügung. Eigener Eingang zum OG mit Lift. Elektrische Jalousien zur Süd- und Westseite.
1 KFZ-Stellplatz ist dieser Einheit fix zugeordnet, außerdem ein Zugang zur gemeinschaftlichen Dachterrasse.

Baujahr 2012, Strom/Gas,  Energiebedarf mit Kennwert 189 kWh/(m²a).

Übernahme nach Absprache möglich!
2.230,-- €
(zzgl. NK)
Grundriss der Büroräume in Memmingen (Verweis)
Grundriss

Grundriss der Büroräume in Memmingen (Verweis)
Bilder

Lage

Objekt-Nr. 83725g

Moderne Bürofläche in Memmingen

Die Immobilie mit einer Fläche von ca. 125 m² ist mit einer modernen Gebäude- und Wärmetechnik sowie mit Nadelvlies-Treppichboden ausgestattet. Insgesamt stehen hier vier Büroräume, eine offene Empfangsfläche, ein Serverraum bzw, Archiv und zusätzliche Nebenräume (eine kleine Küche und 2 WCs) zur Verfügung. Eigener Eingang zum OG mit Lift. Elektrische Jalousien zur Ost- und Südseite.
1 KFZ-Stellplatz ist dieser Einheit fix zugeordnet, außerdem ein Zugang zur gemeinschaftlichen Dachterrasse.

Baujahr 2012, Strom/Gas,  Energiebedarf mit Kennwert 189 kWh/(m²a).

Übernahme ab 01.10.2025 möglich!
1.350,-- €
(zzgl. NK)
Grundriss der Büroräume in Memmingen (Verweis)
Grundriss

Grundriss der Büroräume in Memmingen (Verweis)
Bilder
reserviert!
Lage

Objekt-Nr. 83425g

Flexible Gewerbefläche in Memmingen

Das Mietobjekt mit einer Fläche von insgesamt 900 m² liegt im Gewerbegebiet im Osten von Memmingen.
- Zugang für Kunden über Glasschiebetüre
- Sonnenschutz in Büro- und Aufenthaltsräumen
  elektrisch betrieben
- Sektionaltor für Lade- und Umschlagsschleuse
- lichte Raumhöhe in der Halle 3,20 m
Mietpreis gilt für die Gesamtfläche mit Außenanlage (ca. 2000 m²) ohne Garagen auf der Südseite
Energieausweis in Vorbereitung.
Übernahme ab 1.1.2026 möglich!
5.500,-- €
(zzgl. NK)
Grundriss der Büroräume in Memmingen (Verweis)
Grundriss

Grundriss der Büroräume in Memmingen (Verweis)
Bilder

Parkplatz

Objekt-Nr. 82825g

Modernes Büro als Teil einer Gemeinschaftsfläche in Legau

Das angebotene Mietobjekt mit ca. 49 m² Büro- bzw. Nutzfläche befindet sich in einem stylischen Gebäude mit ausreichend Parkraum dirkekt vor der Immobilie. Der Büroraum selbst mit dem dazugehörigen WC umfasst ca. 30 m². Der modern eingerichtete Gemeinschaftsraum mit komplett ausgestatteter Küche wird zur Hälfte mit ca. 19 m² angerechnet. Ausgestattet ist das Mietobjekt u.a. mit Fußbodenheizung und hochwertigen Sanitäreinrichten sowie einem Energiekonzept auf höchstem Niveau.
PKW-Stellplatzmiete 20,-- €/monatlich
Bezug nach Absprache möglich!
441,-- €
(zzgl. NK)


Grundriss der Büroräume in Memmingen (Verweis)
Grundriss
Grundriss der Büroräume in Memmingen (Verweis)
Bilder

gute Lage

Objekt-Nr. 79924g

Helle und moderne Bürofläche in Memmingen

Die Bürofläche mit ca. 270 m² liegt im Zentrum von Memmingen, nur wenige Gehminuten vom Bahnhof entfernt. Helle Fläche mit 2,60 m hohen Räumen. Strapazierfähiger Bodenbelag. Großes, helles Besprechungszimmer mit Lichtkuppeln.

Baujahr 1984, Gas,  Energiebedarf mit Kennwert 86,4 kWh/(m²a).

Übernahme nach Absprache möglich.

1.620,-- €
(zzgl. NK)
Innenaufnahmen der Gewerbeflächen (Verweis)
Grundriss
Innenaufnahmen der Gewerbeflächen (Verweis)
360 ° Rundgang

Lage

Objekt-Nr. 79624g

Gewerbefläche in Memmingen - Nähe Autobahnanschluss

Das Mietobjekt mit ca. 400 m² im 2. OG ist eingebunden in ein Einzelhandels- und Büroarenal. Parkmöglichkeiten in der Tiefgarage sowie in der Umgebung des Gebäudes. Helle und sehr gut belichtete Mietfläche. Innenausstattung wird nach Wunsch des Mieters übergeben. Außenwerbung gut sichtbar. Lift im Gebäude.
Energieausweis in Vorbereitung.
Übernahme nach Absprache möglich.
Preis nach Ausbauvorgabe und Absprache
Preis pro TG-Stellplatz
30,-- Euro/Monat



Grundriss der Büroräume in Memmingen (Verweis)
Bilder



Lage

Objekt-Nr. 78424g

Büro-, Lager- und Produktionsfläche in Memmingen-Gewerbegebiet

Das Mietangebot liegt in unmittelbarer Nähe der Autobahnauffahrt A7 MM-Süd, umgeben von produzierenden Firmen sowie Einzelhandel und Dienstleistern.
- Büroflächen samt Sozialräume ca. 620 m²
- Lagerhalle 1 ca. 1.780 m² 
  (Bühne zusätzlich ca. 1.500 m²)
- Lagerhalle 2 ca. 1.170 m²
  (Bühne zusätzlich ca. 1.000 m²)
- Auslieferungshalle ca. 350 m² und
  absenkbare Bühne
- Nachtumschlag möglich
- abschließbarer Hofbereich
- 4 höhenverstellbare Laderampen
- gute Parkmöglichkeiten vor den Gebäuden
- ca. 10.300 m² großes Grundstück               
Übernahme des Objektes ab Juli 2024 möglich
Die Vermittlungsgebühr beträgt 2 Kaltmieten zzgl. MwSt.
25.000,-- €
(zzgl. NK)
Innenaufnahmen der Büroräume (Verweis)
Bilder1
Innenaufnahmen der Büroräume (Verweis)
Bilder 2
reserviert!








.... .... .... ....

Der Ordnung halber machen wir darauf aufmerksam, dass unsere Tätigkeit im Erfolgsfalle die Verpflichtung zur Zahlung einer Vermittlungsgebühr in Höhe von 2,38 Nettokaltmieten inkl. der gesetzlichen MwSt. durch den Mieter zur Folge hat. Durch Ihre weitere Objektanfrage bestätigen Sie die Vereinbarung unter Anerkennung dieser Maklercourtage.

Für weitere Informationen klicken Sie bitte auf "Details"! nach oben
Gewerbeangebote im Allgäu
  Beschreibung                                  
Preis  

Der Ordnung halber machen wir darauf aufmerksam, dass unsere Tätigkeit im Erfolgsfalle die Verpflichtung zur Zahlung einer Vermittlungsgebühr in Höhe von 2,38 Nettokaltmieten inkl. der gesetzlichen MwSt. durch den Mieter zur Folge hat. Durch Ihre weitere Objektanfrage bestätigen Sie die Vereinbarung unter Anerkennung dieser Maklercourtage.

Für weitere Informationen klicken Sie bitte auf "Details"! nach oben
Bürozeiten:
Mo.–Fr. 8:30–17:30 Uhr
oder nach Vereinbarung
Kaufgesuch
Mietgesuch

Impressum / AGB

Datenschutzerklärung

Anfahrtsbeschreibung

Unser Profil