Bürozeiten:
Mo.–Fr. 8:30–17:30 Uhr
oder nach Vereinbarung
Kaufgesuch
Mietgesuch

Impressum / AGB

Datenschutzerklärung

Anfahrtsbeschreibung

Unser Profil


Häuser

Exklusive und gepflegte Haushälfte
südwestlich von Memmingen


schönes gepflegtes Wohnen


Lage & Grundstück:

Haushälfte mit ca. 570 m²  eigenem Grund in einem ruhigen und begehrten Wohngebiet -  ca. 10 km südwestlich von Memmingen. 

Die Ortschaft bzw. Verwaltungsgemeinde verfügt über einen Kindergarten sowie eine Grundschule. Einkaufsmöglichkeiten wie Bäckerei und Metzgerei sind vorhanden.
Ein großes Freizeit- und Sportangebot über die örtlichen Vereine kann wahrgenommen werden.
Objekt: Moderne Haushälfte (Ziegel-Massivbauweise), teilweise unterkellert.
Baujahr 1995
Abbildungen: Bilder zum Objekt (Außenaufnahmen)

Bilder zum Objekt (Innenaufnahmen)

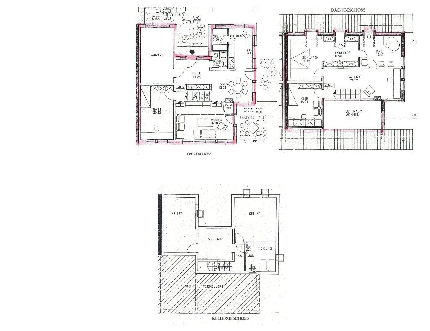
Grundrisse zum Objekt

Preis: 285.000,- Euro
Wohn-, Nutzfläche: Ca. 164 m² Wohnfläche (EG und DG).
Offene und lichtdurchflutete Bauweise mit großer Südterrasse.
Direkter Zugang von der Garage in die Diele des Hauses.
Separates WC mit Dusche.
Im Obergeschoss 2 Schlafräume und sonnige Galeriefläche mit Blick in das Wohnzimmer.
Modernes, helles Bad mit Wanne, Dusche, Doppel-Waschbecken und WC.
Sehr durchdachte und praktische Ausstattung der gesamten Immobilie.
Jede Menge weiterer Highlights.
Bezugstermin: Die Haushälfte kann nach Absprache mit dem Eigentümer übernommen werden.
Vermittlungsgebühr: Der Ordnung halber machen wir darauf aufmerksam, dass unsere Tätigkeit im Erfolgsfalle die Verpflichtung zur Zahlung einer Maklercourtage in Höhe von 3,57% aus dem vereinbarten Kaufpreis inklusive der gesetzlichen Mwst. durch den Käufer zur Folge hat. Durch Ihre weitere Objektanfrage bestätigen Sie die Vereinbarung unter Anerkennung dieser Maklercourtage.
Exposé anfordern: Exposé zu Objekt 07011k
Bürozeiten:
Mo.–Fr. 8:30–17:30 Uhr
oder nach Vereinbarung
Kaufgesuch
Mietgesuch

Impressum / AGB

Datenschutzerklärung

Anfahrtsbeschreibung

Unser Profil